Wettbewerbe

Stadt Remseck am Necker

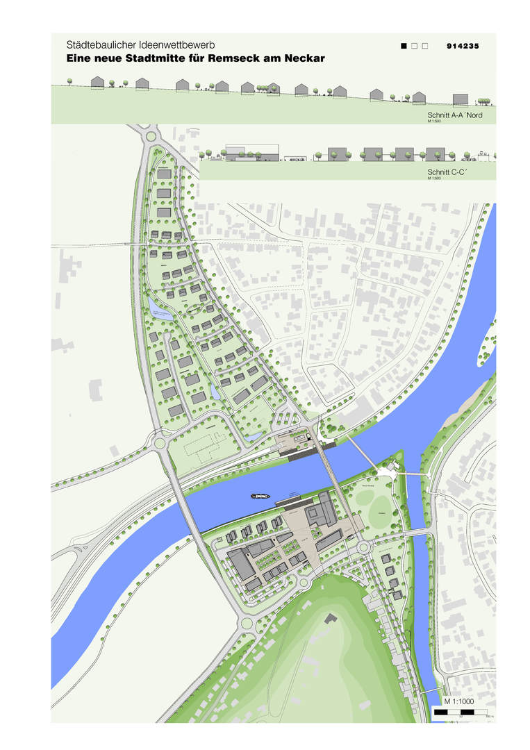
Eine neue Stadtmitte für Remseck am Neckar

Städtbaulicher Ideenwettbewerb

Verwaltung, Kultur, Handel und Wohnen zwischen Neckar und Rems.

2011

Wohnbau Layher Besigheim in Abstimmung mit der Stadt Ludwigsburg

Neubau Gartenstraße 17 - 21 in Ludwigbsurg

Einladungswettbewerb

Neue Wohnbebauung im innerstädtischen Kontext.

2012


Anrufen

E-Mail

Anfahrt